Inmatningsbänk vänster utan hylla

Kategori:

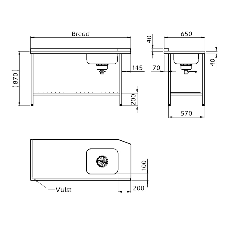
Beskrivning

  • Bredd från 800mm upp till 2900mm.
  • Bänken tillverkas i rostfritt stål AISI 304/1,4301.
  • MDF-skivan under toppskivan är fuktfast och ökar stabiliteten.
  • Benen tillverkas i rostfritt profilrör 30x30mm.
  • Standard höjd är från 870mm och kan justeras upp till 50mm.
  • Bänken har indragen kant med 10mm på vänster sida och framsidan samt 145mm på höger sida.
  • Bakfötterna är indragna med 70mm för att lämna rum för avloppsrör och andra installationer.
  • Från 1800mm bredd tillverkas bänken med tre par ben för att öka stabiliteten.
  • Bakkanten tillverkas som standard uppvikt 40mm, men kan istället tillverkas nedvikta utan extra kostnad.
  • Önskas tillbyggnad eller bänken i något annat utförande, vänligen kontakta oss.

Recensioner

Det finns inga recensioner än.

Bli först med att recensera ”Inmatningsbänk vänster utan hylla”

Din e-postadress kommer inte publiceras. Obligatoriska fält är märkta *

Sign In

Register

Reset Password

Please enter your username or email address, you will receive a link to create a new password via email.